JZD-407靜態中間繼電器接線圖及概述-上海上繼科技有限公司
發表時間:2019-08-06 14:37 瀏覽次數:771 〖返回〗
一、JZD-407靜態中間繼電器
概述
中間繼電器(intermediate relay):用于繼電保護與自動控制系統中,以增加觸點的數量及容量。 它用于在控制電路中傳遞中間信號。中間繼電器的結構和原理與交流接觸器基本相同,與接觸器的主要區別在于:接觸器的主觸頭可以通過大電流,而中間繼電器的觸頭只能通過小電流。所以,它只能用于控制電路中。 它一般是沒有主觸點的,因為過載能力比較小。所以它用的全部都是輔助觸頭,數量比較多。新國標對中間繼電器的定義是K,老國標是KA。一般是直流電源供電。少數使用交流供電。
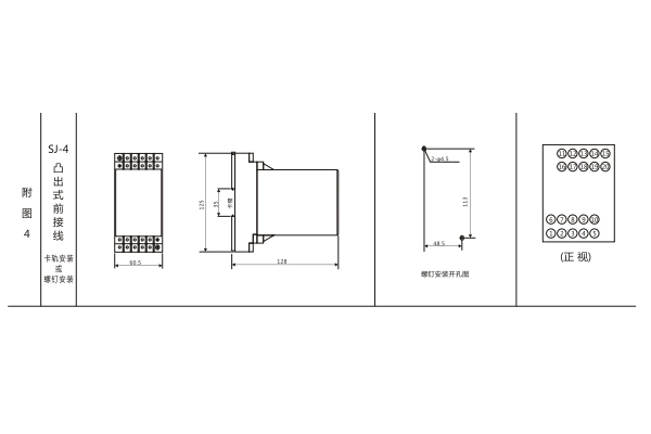
二、JZD-407靜態中間繼電器
外形及開孔尺寸

三、JZD-407靜態中間繼電器
特點
1.靜態中間繼電器采用線圈電壓較低的多個優質密封小型繼電器組合而成,防潮、防塵、不斷線,可靠性高,克服了電磁型中間繼電器導線過細易斷線的缺點。
2.功耗小,溫升低,不需外附大功率電阻,可任意安裝及接線方便。
3.繼電器觸點容量大,工作壽命長。
4.繼電器動作后有發光管指示,便于現場觀察。
5.延時只需用面板上的撥碼開關整定,延時精度高,延時范圍可在0.02-5.00S任意整定
四、JZD-407靜態中間繼電器
用途
可調延時中間繼電器用于直流或交流操作的各種保護和自動控制線路中,作為輔助繼電器,以增加觸點數量和觸點容量。可根據需要自由調節通電延時或斷電延時的時間。
五、JZD-407靜態中間繼電器
內部接線圖及外引接線圖

上海上繼科技有限公司(專注中間繼電器生產廠家)銷售熱線:021-57233089 QQ:1932551438
(以上內容僅供參考,上海上繼科技有限公司有最終解釋權}
更多繼電器精彩文章→DL-43電流繼電器接線圖及開孔尺寸





