智能供配電設備組成部分之智能配電箱的介紹-上海上繼科技有限公司
發表時間:2023-11-23 10:02 瀏覽次數:1262 〖返回〗智能配電柜也即是精密配電柜,是一款針對數據中心機房能源末端,綜合采集所有能源數據的配電柜。為終端能源監測系統提供高精度測量數據,通過顯示單元,實時反映電能質量數據。并通過數字通訊上載至后臺環境控制系統。以達到對整個配電系統的實時監控和運行質量的有效管理。幫助用戶優化網絡數據中心,加強能耗管理,提高服務器機架運行效率,實現全方位綠色IDC提供可靠保障。其主要用于電信、金融、政府及IT等IDC數據中心或工業企業等重要客戶,為網絡服務器等重要設備提供電力分配,配電回路保護,計量,管理于計算機接地等服務,用于供電可靠性要求高 不間斷供電領域。
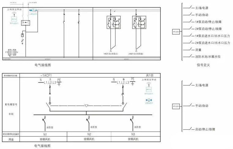
1)智能配電箱網絡結構
配電箱及動力柜智能終端全部采用NB/4G的通訊方式,直接通過移動互聯網與平臺對接。
2)智能配電箱圖紙:


公司介紹:上海上繼科技有限公司是一家專業從事電力系統繼電保護及智能電網電力自動化產品的研發、設計、生產、銷售和服務為一體的高科技公司。擁有資深繼電保護專家團隊和國內**的檢測儀器及校驗設備。同時還引用國內外先進技術,來進行技術創新。本公司的產品廣泛用于電力、工礦、鐵路、建筑等國家重大工程輸配變電系統上,產品遠銷東南亞及中東地區。產品通過國家繼電保護及自動化設備質量監督檢驗中心檢測,獲得ISO9001國際質量體系認證。“科技創新,誠信務實”是公司的經營理念,本公司以高超的技術支持和對用戶高度負責的售后服務贏得了輸配電成套企業的信賴,且樹立了良好的信譽。
公司主營:繼電器(時間繼電器,電壓繼電器,電流繼電器,中間繼電器,信號繼電器,閃光繼電器,沖擊繼電器,同步檢查繼電器,接地繼電器,差動繼電器,重合閘繼電器,絕緣監視繼電器,雙位置繼電器,模數化繼電器),智能操控裝置,微機保護裝置,電力儀表
上海上繼科技有限公司(專注電力保護繼電器生產廠家)銷售熱線:021-57233089 QQ:1932551438
{以上內容僅供參考,上海上繼科技有限公司有最終解釋權}
更多繼電器精彩文章——24V直流繼電器的應用與維護指南





